
Invalid Date
Dilihat 69 kali

Warga Desa Palam Kecamatan Tinangkung Utara Mulai Membangun Masjid Al-Istiqomah, Jadi Harapan Baru Pusat Ibadah dan Kegiatan Warga
Berawal dari keadaan plafon Masjid yang didambakan warga sekitar karena beberapa faktor keadaan, maka warga sepakat ingin membangunnya,
Untuk menindaklanjuti keinginan warga tersebut, maka dilakukan pertemuan pembahasan pembangunan pada tanggal 4 Juli 2025 bertempat di Masjid Al-Istiqomah Desa Palam (Masjid Tua) dan dihadiri Pj. Kepala Desa Palam, Anggota BPD dan Tokoh Masyarakat lainnya, dengan menghasilkan agenda perencanaan dan terbentuknya Panitia Pembangunan :

Musyawarah pertama Panitia Pelaksana Pembangunan pada tanggal 20 Juli 2025 Bertempat di Balai Desa Palam dihadiri Pemerintah Desa Palam, BPD, Tokoh Agama, Tokoh Adat, Tokoh Pendidik, Tokoh Pemuda dan Panitia Pelaksana dengan hasil utama musyawarah yaitu Masjid akan dibangun Baru, dengan agenda pembiayaan berharap penuh pada swadaya dari Masyarakat dalam bentuk sumbangan buah kelapa setiap Jum’at atau Donasi Uang Sikhlasnya, dimana kami Panitia menamakannya “Gerakan Jum’at Berkah Kelapa Biji” (GJB). Dengan cara Panitia menjemput setiap hari jum’at sumbangan masyarakat di depan rumah warga masing-masing.


Setelah sekian lama dinantikan, masyarakat Desa Palam akhirnya memulai pembangunan Masjid Al-Istiqomah Ditandai dengan peletakan batu pertama pada tanggal 5 September 2025 atau bertepatan dengan hari Maulid Nabi 12 Rabbi’ul Awal 1447 H, pembangunan ini diharapkan dapat menjadi pusat kegiatan keagamaan, sosial, dan pendidikan bagi seluruh warga. Prosesi peletakan batu pertama dihadiri oleh sejumlah tokoh penting seperti Pj. Kepala Desa Palam (Muhin Mangambali), Tokoh Agama, Tokoh Adat, Tokoh Pendidik dan Tokoh Masyarakat lainnya, Panitia Pembangunan serta ratusan warga yang antusias. Dalam sambutannya Pj. Kepala Desa Palam menyampaikan apresiasinya atas semangat gotong royong masyarakat dalam mewujudkan masjid baru ini. "Masjid ini bukan hanya tempat Sholat, tapi juga rumah kita bersama. Tempat kita mempererat silaturahmi dan mendidik generasi muda," ujarnya.

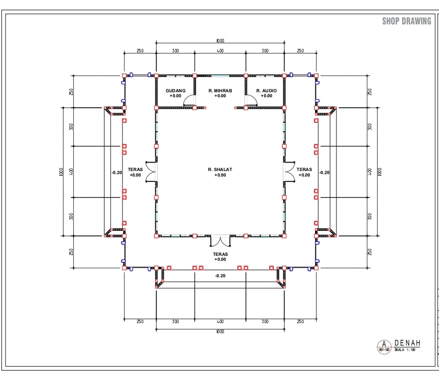
Masjid Al-Istiqomah akan dibangun di atas lahan seluas 1.221 meter persegi. Desainnya direncanakan akan mengusung konsep Gaya Arsitektur modern minimalis dengan kapasitas menampung hingga 100 jemaah. Menurut Ketua Panitia Rustam Kiliu, pembangunan ini diperkirakan memakan waktu Insya Allah ± 2 Tahun dengan Target 6 Bulan pengerjaan bangunan Masjid sudah bisa digunakan, dan membutuhkan total biaya sebesar ± Rp.700.000.000 (Tujuh Ratus Juta Rupiah) yang berasal dari swadaya masyarakat dan donasi para dermawan.

"Kami sudah mengumpulkan dana dari berbagai sumber, termasuk infak, sedekah, dan wakaf dari warga. Namun, kami masih sangat terbuka untuk menerima bantuan dari pihak mana pun yang ingin beramal jariyah," kata Ketua Panitia
Harapannya, masjid ini bisa menjadi pusat pergerakan dakwah dan pengembangan diri bagi masyarakat sekitar. "Kami ingin masjid ini hidup, ramai dengan kegiatan positif, tidak hanya saat salat lima waktu," tambah Ketua panitia
Pembangunan Masjid Al-Istiqomah Desa Palam menjadi bukti nyata dari semangat kebersamaan dan keimanan masyarakat Desa Palam Kecamatan Tinangkung Utara. Dengan dimulainya proyek amal ini, harapan untuk memiliki tempat ibadah yang representatif semakin dekat menjadi kenyataan.

Semoga langkah kita
terhitung Amal Ibadah di Sisi Allah swt dan Semoga kita selalu diistiqomahkan
dalam kebaikan,
Aamiin Ya Robbal’alamiin
Bagikan:

Desa Palam
Kecamatan Tinangkung Utara
Kabupaten Banggai Kepulauan
Provinsi Sulawesi Tengah
© 2025 Powered by PT Digital Desa Indonesia
Pengaduan
0
Kunjungan
Hari Ini